Bachelor
2. Fachsemester TUM Techische Universität München | Fakultät für Architektur | Professur für Entwerfen und Holzbau | Prof. Hermann Kaufmann
Entwerfen | Typus | Konstruktion
1. Übung
Mit dem vorgegebenen Material Holz ist ein Objekt im Maßstab 1:1 herzustellen.
Aus den Überlegungen zu verschiedenen Möglichkeiten der Fügung und Verbindung von stabförmigen Einzelteilen soll ein grundlegendes Verständnis der Zusammenhänge zwischen Konstruktion und Gestaltung erlangt werden.
Durch geeignete Maßnahmen ist eine wirksame Aussteifung der Gesamtkonstruktion zu erreichen.
2. Übung
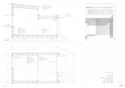
Mit der Anfertigung von Planzeichnungen für eine vorgegebene Gebäude- planung werden die zur technisch und zeichnerisch richtigen Darstellung von Werk- und Detailplänen notwendigen Fähigkeiten und Kenntnisse erarbeitet.
Dabei wird der für den Holzbau charakteristische mehrschichtige Aufbau an exemplarischen Detailpunkten, die im Maßstab 1:5 vorliegen, untersucht und in vollständigen Schnittzeichnungen nachvollzogen.
Die für den Maßstab 1:20 geeignete Detailschärfe ist aus den Vorlagen zu übernehmen und mit den Möglichkeiten der Bleistiftzeichnung wiederzugeben. Insbesondere ist dabei auf eine exakte und gut lesbare Darstellung durch unterschiedliche Strichstärken, deutliche Schraffuren und eine übersichtliche Bemaßung und Beschriftung zu achten.
3. Übung
Aus der Auseinandersetzung mit dem Ort, Raumprogramm und der Konstruktion, ist ein architektonisches Konzept für ein kleines Bauwerk umzusetzen.
Master
9-12 Fachsemester TUM Techische Universität München | Fakultät für Architektur | Professur für Entwerfen und Holzbau | Prof. Hermann Kaufmann
Raum, Konstruktion und Ökologie; die vielfältige Bandbreite moderner Holzkonstruktionen ist Inhalt komplexer Entwurfsaufgaben. Der Prozess des konstruktiven Entwerfens wird ganzheitlich aufgefasst. Die Herausforderung besteht in der Suche nach angemessenen architektonischen Lösungen, die aus einer intensiven thematischen Auseinandersetzung entstehen. Die Entwurfsergebnisse werden detailliert dargestellt und präsentiert. Entwurfsbegleitend ergänzen Exkursionen und Seminare das Lehrangebot.
Sonderthemen des Holzbaus
Laufzeit 2011 - 2016 Modellbau im Rahmen eines Konstruktiven Analyseseminars | Master und Bachelor
TUM Techische Universität München | Fakultät für Architektur | Professur für Entwerfen und Holzbau | Prof. Hermann Kaufmann
Die Ausstellung "Bauen mit Holz - Wege in die Zukunft" wurde im Oktober 2016 nach München (2011) und Wien (2012) im Martin-Gropius-Bau Berlin eröffnet. Sie wird organisiert und kuratiert von der Professur für Entwerfen und Holzbau der TUM. Projektleitend sind Martin Kuehfuss und David Wolfertstetter tätig.
Design Build
ShabbyShabby Camp
Fertigstellung 2015
Es kann doch nicht einfach jeder schlafen, wo er will! Oder doch? Matthias Lilienthal, der zur Spielzeit 2015/2016 die Intendanz der Münchner Kammerspiele übernimmt, startet mit dem spannenden Projekt Shabbyshabby Apartments in seine Amtszeit. Das mit dem Berliner Architektur- und Kunstkollektiv raumlabor entwickelte Projekt setzt sich auf experimentell-künstlerische Art und Weise mit der Frage des Wohnens und Lebens in einer Boomtown wie München auseinander: 120 Kreative werden mit einem Budget von jeweils 250 Euro insgesamt 24 Shabbies in den Münchner Stadtraum bauen, die dann zwischen dem 12.9.2015 und dem 13.10.2015 wie kleine Hotel-Apartments gebucht und bewohnt werden können.
Der Aufbau des Camps auf dem Marstallplatz, in dem die Bauteams ab dem 3. September selbstständig ihre Entwürfe realisiert haben, wurde von uns (Professur für Entwerfen und Holzbau der Technischen Universität München, Fakultät für Architektur) zusammen mit Studierenden gestaltet und umgesetzt. Die entwerfenden Studierende wurden von uns über ein Semester begleitet. Das Gebäude wurde zusammen innerhalb von zwei Wochen vor Ort errichtet. Entstanden ist eine ca. 900m² große temporäre Kollektivarchitektur für 80 Personen die folgende Funktionen vereint: Wohnen, Essen, Kochen, Wellness, Büro und Werkstatt. Die Gemeinschaftszone mit Essbereich und Küche gibt sich als halb-öffentliche Piazzetta auf dem Marstallplatz, die Interessierte anzieht und zur Gemeinschaft einlädt.
Facebook
Bayerisches Fernsehen
Kammerspiele
RaumlaborBerlin
Waisenhaus in Rakwana Sri Lanka
Fertigstellung 2017
Im Wintersemester 2016/17 bietet die Professur für Entwerfen und Holzbau im Rahmen des realstudio ein neues Design-Build Projekt an (Design Studio mit anschließender Umsetzung des Entwurfes in Sri Lanka).
„Caratha bhikkave carikan, Bahujana hitaya, bahujana sukhaya.“
Ziehet umher ihr Mönche und tut Gutes zum Wohle und zur Zufriedenheit aller - so lautet die sinngemäße Übersetzung der Worte, die der Buddha kurz vor seinem Tod an seine Mönche richtete.
Dies ist zugleich Motto der Sri Bodhiraja Foundation, der gemeinnützigen Stiftung eines buddhistischen Klosters in Embilipitiya im Süden Sri Lankas, das zu den bekanntesten Ausbildungsklostern in Sri Lanka zählt und neben zahlreichen Pre-School und Kindergärten ein zweisprachiges College sowie zahlreiche soziale Einrichtungen betreibt.
Hierzu soll nun ein Waisenhaus für elternlose Kinder kommen, das Gegenstand des Entwurfsstudios sein wird.
Eingeschränkt kann der Entwurf im Sommersemester 2017 vertieft werden. Die bauliche Umsetzung des Entwurfes findet dann nach dem Sommersemester 2016 statt.
Blog